Blackheath - St Michael & All Angels Church Hall 1A Ponds Road Blackheath SE3 9Jl

Share on Facebook Button
Address
St Michael & All Angels Church Hall 1A Ponds Road
Blackheath
London
SE3 9Jl
Contact: Marion Lane
Bouncy Castle Hire - We supply soft play and bouncy castles at this hall venue
Call: 0208852 1205
Email: Click to Email
Web: Click for Website
Church halls - booking
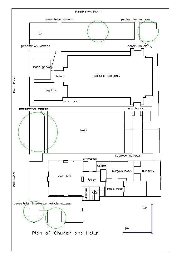
See also the plan of the church and halls.
For bookings please call the Parish Office 8852 1205. Please have a look at these Guidance Notes before you call the office.
PARTY HIRE 1.30-6pm
Guidance Note for Users of St Michael’s Church Halls
General
St Michael’s Halls form part of the church buildings. Hall users are asked to be sensitive to the fact that there may be other church events, services, or meetings going on at the same time.
The Halls have a strict Health & Safety and Child Protection Policies which must be followed by hirers.
Hirers of the Halls are responsible for managing their group or activity in such a way that ensures that everyone is safe. We strongly recommend all hirers have their own insurance and that organisers of any activity involving children are CRB checked.
Halls and Rooms for hire - Summary
Main Hall
(40x 40 feet/12x12 metres). Ideal for bouncy castles, Bungee Run, Assault Course, Fun runs and Soft play sets are always great with a bouncy castle and ball pond in Blackheath SE3.
Hire includes use of the adjacent kitchen. The Main Hall can be hired on an hourly basis for Term-Time Groups (eg Toddler groups, Dance, Keep Fit, After-School Activities etc) as well for Children’s Parties (Thursday and Saturday afternoons 1-6pm) and also for one-off meetings.
Hide more details...
If you have booked the Main Hall please enter via the Foyer.
There are adult trestle tables (x14) and chairs (100+) which are stored in the corner of the main Hall which you can use. If you use the large tables please ensure that after stacking them in the table trolley, that the safety cord is put across the front of the tables to protect other users. There is a chair trolley to help you move chairs about safely. We recommend that you do not lift more than three stacked chairs at one time.
There are small children’s tables (x15) and small children’s chairs (x45) Please also ensure that you do not block the fire exits with any tables or chairs during your activity. Please make sure that soft shoes are worn for activity games.
You may use the kitchen directly off the Main Hall, which includes some crockery, hot water urn and kettle, cooker, microwave, fridge/freezer, dishwasher and tea towels. There is a folder with instructions for all the equipment next to the microwave.
Please do not leave left over food or drink in the fridge. Other people do not use it.
You may have a small bouncy castle inside the main hall or on the lawn, but please check with us first in case it is being used by the church (see Church lawn note).
Toilet Facilities
There are Men’s and Ladies’ loos directly off the Main Foyer as well as a Loo for Disabled People which includes baby-changing facilities.
John Bunyan Hall.
(45 sq metres).
Hire includes use of a small and very basic kitchen adjacent to it. First Steps Nursery uses this hall during the day, so this hall is only available for after-school (4pm++) or evening classes. The JB Hall can be hired on an hourly basis for Term-Time Groups or for one-off meetings.
Hide more details...
Please enter this hall via the covered walkway. You may use the kitchen just off the John Bunyan Hall which includes a kettle, fridge and tea towels. The enclosed courtyard garden at the rear is not available unless specially agreed beforehand. There are loos available just off the main foyer (including a disabled loo and baby changing facilities). The JB Hall is used by First Steps Nursery every weekday.
Please do not use the Nursery toys and equipment stacked in the corner other than the tables and chairs. Thank you.

Car Parking, Gates and Cator Estate Clamping
The church and its halls are on the private Cator Estate which employs a clamping company 24hrs a day. Please ensure that everyone coming to the party, parks in Pond Road (being careful not to park on the pavement) AND that they display a parking notice (given to all hirers, plus more are available from the Main Foyer).

There is limited space in the drive so only activity and party organisers should park in the driveway behind the halls.
Please also note that the Cator Estate Residents close some of the gates to the estate during rush hours (7.30-9.30am and 5-7pm) in order to discourage “rat-running” and during these times it is only possible to enter the estate via the Blackheath Park entrance.

............................

Please contact the hall direct to make a venue booking and then see our website for booking your inflatables, soft play, ball ponds, bounce & slide combo inflatable and more more


ONCE YOU HAVE BOOKED YOUR HALL - THEN BOOK ONLINE WITH US FOR YOUR INFLATABLES AND SOFT PLAY
0