Woldingham Village Hall

Please contact the hall direct to make a venue booking and then see our website for booking your inflatables, soft play, ball ponds, bounce & slide combo inflatable and more more.

We are not associated with this hall.

Woldingham Village Hall

There are a huge variety of ways for the hall to be utilised and accessed and here you'll find all the information you need. Additional items are also included in the hire. Click here for more information.

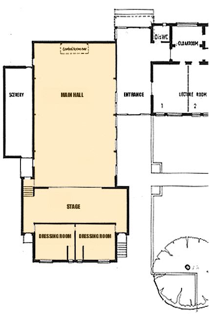
In order of size starting with the largest space, below are the different areas within the hall:
The Main Hall - 59ft x 30ft
Perfect for stage shows, musical performances and large receptions.
With a theatre stage with professional lighting and sound system; backstage dressing rooms with toilet; and a grand piano.
Seats up to 150 people with dining tables, Theatre style seating up to 200 people

Since opening in 1968 the hall has provided a central and easily accessible focal point for the residents of Woldingham and visiting guests. A beautiful hall located in the heart of the community, hosting events and activities, as well as being available for hire.


Rates exclude an optional cleaning charge of £100 (request this when you book if you don't wish to do the cleaning and put away the tables and chairs at the end of the hire. Just clear your rubbish and the rest will be sorted).

Normally bookings are for the whole of a session, not fewer hours. However, the Booking Secretary may be able to offer a variation, in which case a separate price will be quoted.


Discount for Woldingham Residents. A discount of 25% applies when:
A resident is hiring for their own use eg a party,
The hiring is for a Woldingham non-profit/non-commercial organisation,
A Woldingham resident is hiring for a function on behalf of a registered UK charity,
The hiring for a wedding reception is booked by a Woldingham resident who is the bride/groom,
or parent/grandparent of either the bride or groom.

~~~~~~~~~~~~~~~~~~~~~~~~~~~~~~~
~~~~~~~~~~~~~~~~~~~~~~~~~~~~~~~
Regular/block bookings - discounts by arrangement with the Booking Secretary.


  • Included (at no extra charge) is the hiring of the kitchen, chairs, trestle tables, card tables, grand piano and a cooler cabinet for drinks.
  • Theatre lighting is metered and charged at £1 per unit of electricity used.
  • It is essential you read our Terms of Hiring for further important details.
  • A deposit for parties and events is required, and your invoice will be forwarded after the event has taken place, as there may additional charges.

Additional Charges can be incurred
Rubbish bags left to be cleared properly £10 per bag
Bottles/glasses/cans left in hall grounds £25
If subsequent cleaning is required £25
Use of hall beyond booked time £50 per half hour

Parking
Spaces for 26 cars of which 2 are disabled spaces, with an overflow for 10 spaces. Please note there is no access for coaches over 14 seats, please use The Crescent for safe drop off and collection.

Comments from our customers 2019
"Good facilities, excellent service, thank you!".
"Prompt response to all my questions. Bookings Secretary was great".
"Previously used WVH, would definitely recommend to friends".
"Service from Bookings Secretary was excellent".
"Thank you for all your hard work in making the Hall clean and tidy inside and out".
"Bookings Secretary was prompt and courteous, fabulous service".

Please contact the hall direct to make a venue booking and then see our website for booking your inflatables, soft play, ball ponds, bounce & slide combo inflatable and more more

Address
Station Rd, Woldingham,
Caterham,
Surrey
CR3 7DB
Bouncy Castles & Soft Play Hire - we are suppliers to this hall. Free delivery
Call: 01883 653106
Web: Click for Website

ONCE YOU HAVE BOOKED YOUR HALL - THEN BOOK ONLINE WITH US FOR YOUR INFLATABLES AND SOFT PLAY
0